Blokhut
Informatie blokhut
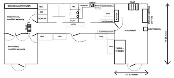
De blokhut van DRAS8 staat aan de Mispelhoefstraat 126 in Acht. Dit gebouw is omringt door een mooi en veilig speelbos waar kinderen leuk kunnen spelen. De blokhut beschikt over 3 verschillende lokalen, een keuken en sanitair.
De blokhut is NIET te huur.
Keuken
Heren en Damestoilet






